Jaselská
Půdní mezonetový byt 5+kk s výhledem na Prahu

Jaselská
・
ID 531735
Jaselská, Bubeneč, Praha 6
34 500 000 Kč
34 500 000 Kč
Půdní mezonetový byt 5+kk s výhledem na Prahu
Luxusní půdní mezonet 5+kk situovaný v prestižní rezidenční čtvrti Prahy 6 – Bubeneč čeká na svého nového majitele. Dominantou této exkluzivní nemovitosti je prostorná terasa o rozloze 33 m², nabízející panoramatické výhledy na stověžatou Prahu.
Vybavení
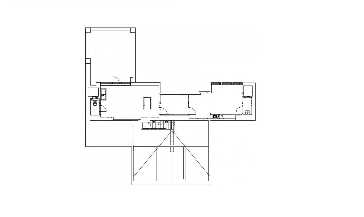
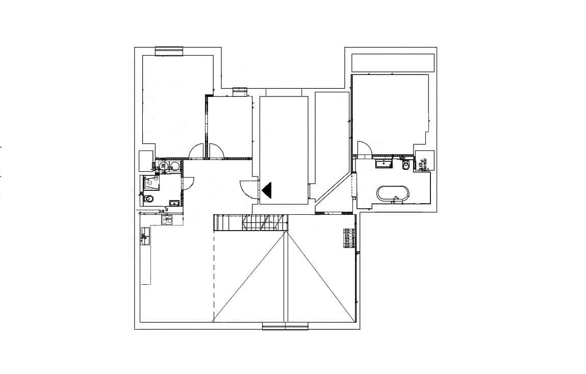
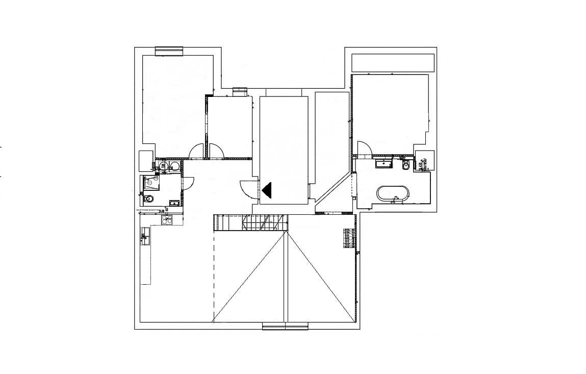
Moderní světlý mezonet s dispozicí 5+kk a celkovou plochou 192 m² splňuje všechny nároky na moderní a komfortní životní styl. Nemovitost se nachází na 5. nadzemním podlaží. Spodní úroveň bytu zahrnuje vstupní halu, světlý obývací pokoj s krbem, plně vybavený kuchyňský kout, dvě ložnice, dvě koupelny a praktickou šatnu. Na vyvýšené galerii se nachází další ložnice, koupelna a kompaktní místnosti sloužící jako úložné prostory. Z galerie máte přístup na prostornou terasu, odkud se vám nabízí dechberoucí pohled na město i do klidného vnitrobloku plného zeleně. Byt je plně klimatizován a vybaven inteligentní domácností.
Lokalita
Oblíbená pražská čtvrť s jedinečným duchem, obklopená zahraničními ambasádami. Stanice metra Dejvická a Hradčanská a zastávky MHD se nacházejí v pěší vzdálenosti. Automobilisté ocení rychlé napojení na dálnici, krátký dojezd na letiště Václava Havla, k obchodnímu centru Stromovka a OC Nový Smíchov. V těsné blízkosti máte k dispozici veškerou občanskou vybavenost – od obchodů a supermarketů, přes restaurace a bary, až po lékárny a poštu. Okolí je ideální pro rodiny s dětmi, které ocení dostupnost mateřských, základních, středních a vysokých škol, včetně prestižních mezinárodních škol. Pro volný čas jsou k dispozici sportovní centra, tenisové kurty a workout parky. K procházkám lákají blízké parky, např. Stromovka nebo malebné břehy Vltavy.
Specifikace nemovitosti
- Lokalita
- Bubeneč
- Adresa
- Dispozice
- 5+kk
- Ložnice
- 3
- Koupelny
- 3
- Podlahová plocha
- 192 m²
- Podlaží
- 5
- Orientace
- Severovýchod
- Terasa
- 33 m²
- Vybavení
- Výtah, Krb
- Stav stavby
- Velmi dobrý
- Energetická náročnost
- G
Máte o tuto nemovitost zájem?
Spojte se s námi. Rádi s vámi probereme detaily.

Galerie
Jak vypadá nemovitost a její blízké okolí

Půdorys
Prozkoumejte dispoziční řešení
Poradíme s výběrem
Pomůžeme s financováním
Nemovitost jako investice
Lokalita
Co se nachází v okolí
Sledování novinek v nabídce

