Apartment Pod Drinopolem
Spacious one-bedroom apartment with a terrace for sale
Apartment Pod Drinopolem
・
ID 533501
Pod Drinopolem, Břevnov, Praha 6
€ 391,383
€ 391,383
Spacious one-bedroom apartment with a terrace for sale
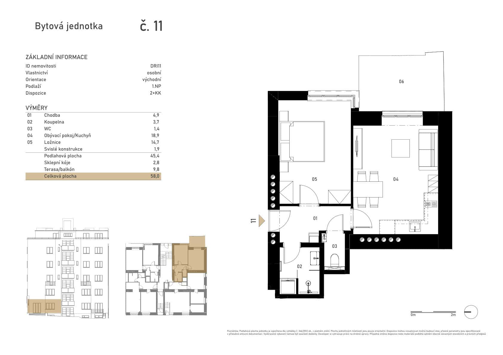
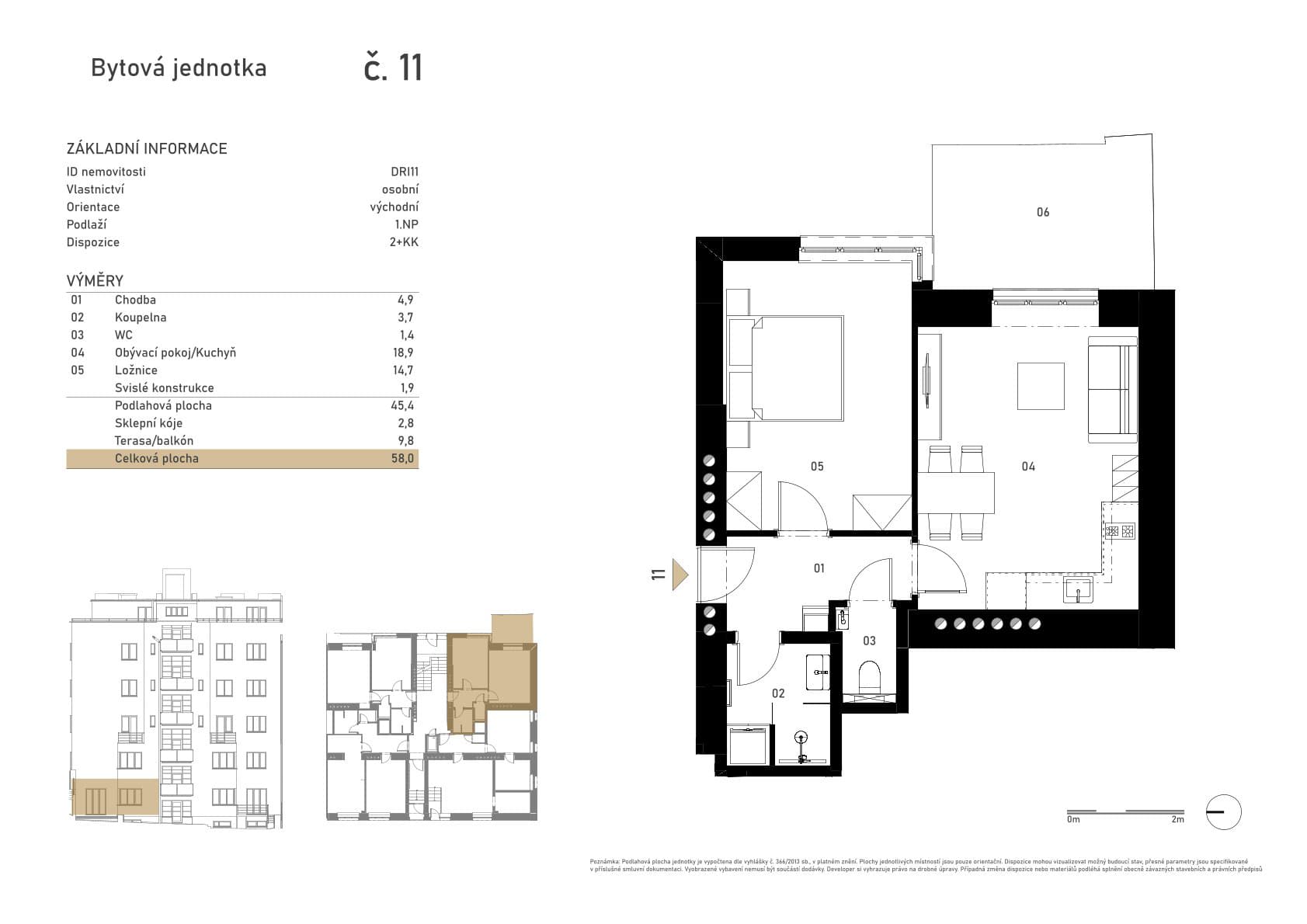
This one-bedroom apartment is part of the Pod Drinopolem residential project, which involves the complete renovation of an apartment building in one of the quietest parts of Prague 6. Located in the heart of a residential neighborhood, it offers a combination of green spaces, privacy, and excellent access to the city center.
The apartment is located on the first floor and faces east, creating a cozy atmosphere for both daily life and relaxation.
The centerpiece of the apartment is a spacious living room with a kitchenette (18.9 sqm), which offers plenty of space for comfortable seating and a dining area. Adjacent to it is a comfortable bedroom measuring 14.7 sqm, providing ample space for a large bed and storage solutions. The practical layout also includes an entryway, a separate toilet, and a bathroom.
The apartment also features a sunny terrace (9.8 sqm) and a basement storage unit (2.8 sqm), which is ideal for storing sports equipment or seasonal items.
Equipment
The building is undergoing a complete renovation, which includes a new elevator, entrance portals with security doors, and high-quality common areas with ceramic tiles and wooden elements. Residents will have access to a relaxation area with a sauna and gym, a bicycle storage room, a laundry room, and a landscaped courtyard with a quiet area and seating.
Locality
A major advantage is the attractive location of Brevnov, one of the most sought-after residential areas in Prague. The surrounding area offers a full range of amenities – shops, restaurants, cafés, schools, and healthcare services. Nature lovers will appreciate the proximity of parks and green spaces, while quick public transport connections ensure easy access to the city center.
This apartment is an excellent choice for your own home or as a rental investment, thanks to its combination of a prime location, practical layout, and pleasant atmosphere.
Visualizations are for illustrative purposes only.
Information
- Read information for buyers
- Price
- €391,383
- Status
- Available
- Availability
- immediately
- Investment
- Yes
- ID
533501
Property specifications
- Location
- Břevnov
- Address
- Layout
- 2+kk
- Bedrooms
- 1
- Bathrooms
- 1
- Floor area
- 45.4 sqm
- Cellar
- 2.8 sqm
- Floor
- ground floor
- Orientation
- East
- Terrace
- 9.8 sqm
- Facilities
- Elevator, Sauna
- Building condition
- After reconstruction
- Energy efficiency
- F
Are you interested in this property?
Contact us. We’ll be happy to discuss the details.

Gallery
What the property looks like and its surroundings
Floor plan
What you'll find in the property
We’ll help you choose
We’ll help with financing
Property as an investment
Location
What's around the property
Watchdog

