Exclusive

Appartment Buzulucka

Spacious 5-bedroom apartment with a rooftop terrace

Property image
Property image

Appartment Buzulucka

ID 533467

Buzulucká, Dejvice, Praha 6

5+1239.8 sqm4/5 (elevator)TerraceVery good

€ 1,313,090

Spacious 5-bedroom apartment with a rooftop terrace

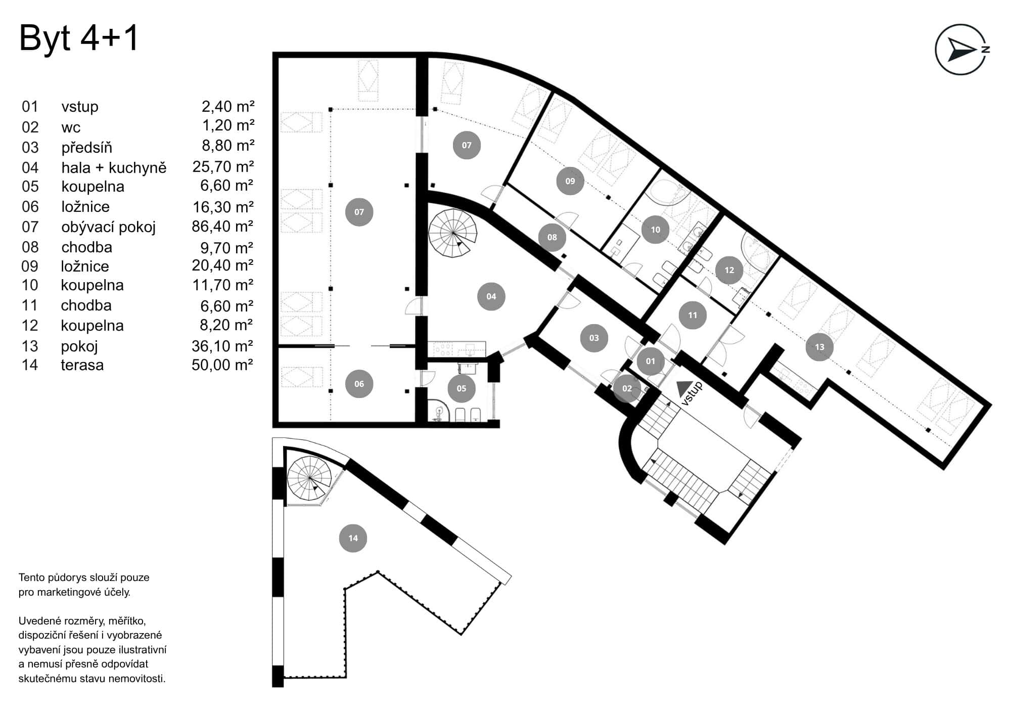
The spacious apartment on the top floor of the house on the corner of Kafkova and Buzulucka streets in Dejvice is attractive for its solution, where the entire interior area of 238 sqm is distributed only on the 5th floor and the staircase is used only when we want to go out to the roof terrace with an area of 51 sqm. The apartment is arranged in a layout with four bedrooms, each with its own bathroom, a large living room facing southwest and a separate kitchen with a dining room, from which the aforementioned staircase leads to the roof terrace. The terrace, although large, is completely hidden behind the ridge of the roof and is thus protected from views from surrounding houses. The terrace floor is statically reinforced to accommodate an outdoor jacuzzi. Returning to the interior, we must not forget to mention that one of the bedrooms of the apartment is situated and structurally prepared in such a way that it can be used for separate use. This opens up the possibility of multi-generational living with a student child or a senior parent. An alternative is the possibility of inserting an entrance door into this part of the apartment and creating an independent studio apartment with the possibility of external rental. Heating and energy metering take this possibility into account. The interior of the apartment is well-lit, the rooms are spacious, and the equipment is designed in natural light tones. The house has a new elevator with an exit directly at the apartment. The interior of the house is clean and continuously maintained. The condominuim of the house is currently building an office in the lower ground floor, which will be externally rented out and the income from this rental will be an important benefit to all owners in the house. There is also a quiet internal garden with benches and mature greenery in the courtyard.

Equipment

Parquet floors. Underfloor heating. Preparation for air conditioning. Preparation for a gas fireplace. Preparation for a kitchen unit. 2x gas boiler with a hot water tank. Bathrooms equipped with high-quality sanitary ware.

Locality

The house at Buzulucka 6 is built on the corner of Kafkova and Buzulucká, it is a quiet place without car traffic, but at the same time 200m above Vítězné náměstí and therefore within walking distance of the local transport hub. The city center is accessible within 10 minutes. The airport is within 20 minutes by car.

Information

Price
€1,313,090
Status
Available
Investment
Yes
ID

533467

Property specifications

Location
Dejvice
Address
Buzulucká, Praha 6
Layout
5+1
Bedrooms
4
Bathrooms
4
Floor area
239.8 sqm
Floor
4
Orientation
Southwest
Terrace
51 sqm
Facilities
Elevator
Building condition
Very good
Energy efficiency
G
Interested in more information? Contact us

Are you interested in this property?

Contact us. We’ll be happy to discuss the details.

Cta Image

Gallery

What the property looks like and its surroundings

Gallery
Gallery
Gallery

Floor plan

What you'll find in the property

Property image
Property image

We’ll help you choose

With 30 years of experience in the real estate market, we’ll find a property that perfectly matches your taste.

We’ll help with financing

We’ll find the best path to your new home and assist with selling your current property.

Property as an investment

We’ll help you carefully select an investment property in Prague and the surrounding area to grow your capital.

Location

What's around the property

Watchdog

Set up a watchdog, so you don't miss any property according to your wishes

Create watchdog