Exclusive
Hodkovičky
Exclusive villa for sale in a quiet location
Hodkovičky
・
ID 531330
Hodkovičky, Praha 4
Exclusive villa for sale in a quiet location
We offer an exclusive five-bedroom villa for sale in a prestigious location of Prague 4 - Hodkovičky, surrounded by greenery in close proximity to the forest park, golf course and bike paths along the Vltava River. The representative residence with a separate single-bedroom unit, two terraces, a large garden, an indoor pool, a garage and a carport offers comfortable family facilities and plenty of privacy.
Equipment
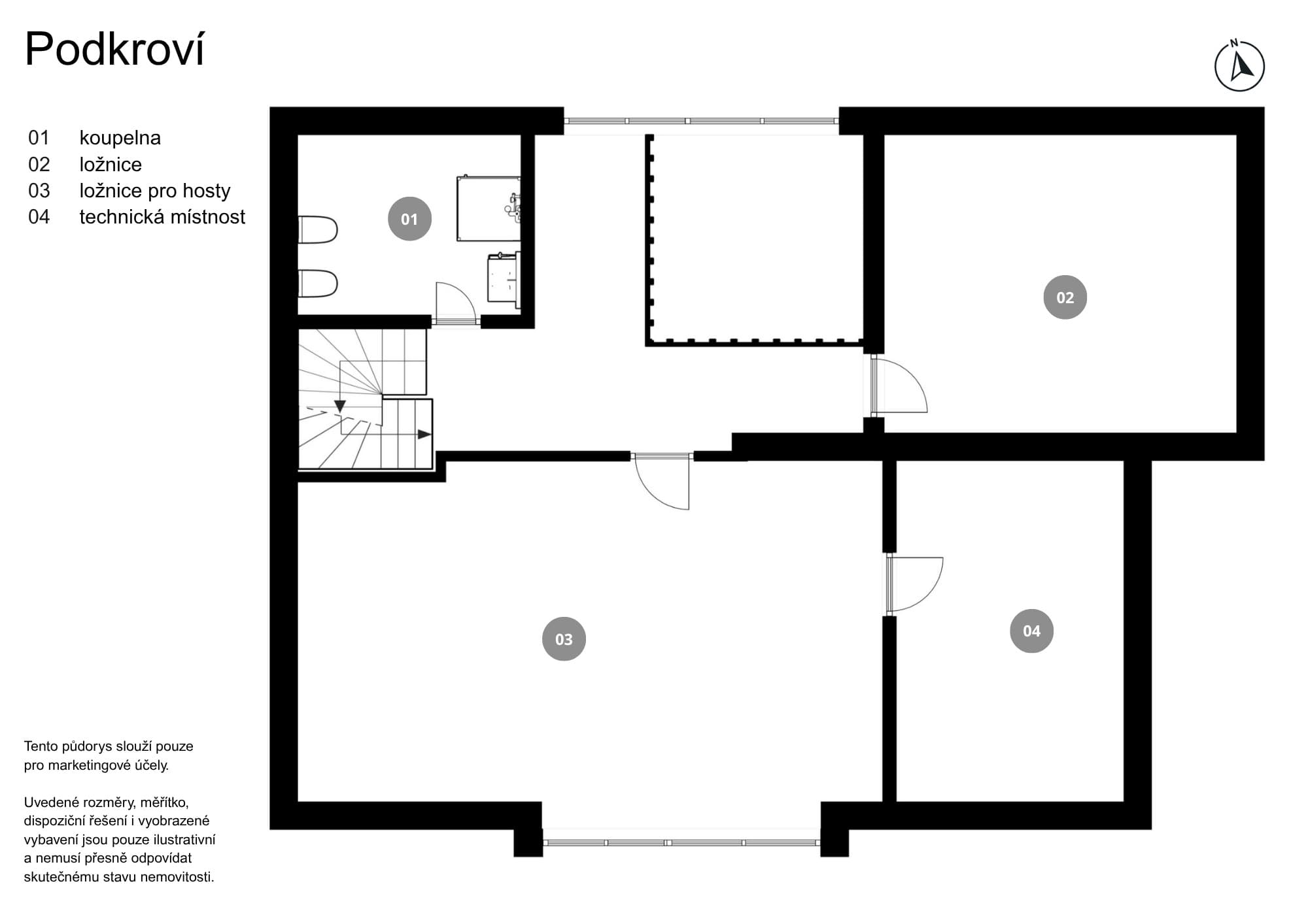
This majestically towering 5-bedroom villa is set in sloping terrain amongst mature trees and offers a unique combination of luxury, privacy and comfort on a total living area of 700 sqm. On the ground floor you will find an indoor pool, sauna, spacious fitness area, bathrooms, toilets, practical storage areas. There is also a dedicated for a single-bedroom apartment with a separate entrance, private bathroom and toilet - ideal facilities for guests or staff. The first floor will charm with its representative entrance, stylish kitchen with bar seating and pantry, dining room with direct access to one of the terraces, airy living room with fireplace, dressing room and garage for two cars. On the second floor there are spacious bedrooms, bathrooms and a large study, providing ample space for family and work from home. The third floor, will offer additional bedrooms, bathroom and utility room. The luxury villa stands out for its unique architecture, tastefully furnished interior, quality materials and modern appliances. It also includes a large landscaped garden of 1,700 sqm with three garden houses.
Locality
Hodkovičky is synonymous with comfortable living in the countryside and within easy reach of the metropolitan centre. In the vicinity you will find kindergartens, primary schools, grammar schools, language schools and playgrounds. For everyday shopping, you will appreciate the proximity of supermarkets (Albert, Lidl), smaller shops, bakeries, pharmacies or cafes, which complete the neighbourhood atmosphere of this district. There are also medical facilities and a post office nearby. The location boasts excellent transport accessibility - within walking distance you will find tram and bus stops that will comfortably transport you to the centre of Prague within 15 minutes. The connection to the main road routes is also excellent. Lovers of nature and active recreation will appreciate the proximity of the Hodkovičky Forest Park, the large Prague-Hodkovičky golf course, the cycle path along the Vltava River, the popular Branický Forest or the Modřanská rokle Nature Park.
Property specifications
- Location
- Hodkovičky
- Address
- Layout
- 8+1
- Bedrooms
- 6
- Bathrooms
- 4
- Floor area
- 700 sqm
- Land plot
- 1900 sqm
- Garden
- 1700 sqm
- Number of floors
- 3
- Parking
- 2x Garage, 1x Parking on property
- Terrace
- 110.9 sqm
- Facilities
- Swimming pool, Sauna, Fireplace
- Building condition
- Very good
- Energy efficiency
- D
Are you interested in this property?
Contact us. We’ll be happy to discuss the details.

Gallery
What the property looks like and its surroundings
Floor plan
What you'll find in the property
We’ll help you choose
We’ll help with financing
Property as an investment
Watchdog

