Exclusive
Tiche udoli
Land for construction of a family house
Tiche udoli
・
ID 529412
Tiché údolí, Praha - západ, Roztoky
€724 /sqm
€ 1,025,851
€724 /sqm
€ 1,025,851
Land for construction of a family house
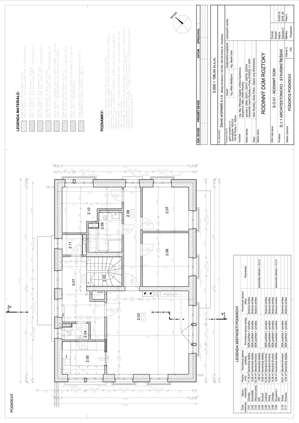
A building land of 1,416 sqm for the construction of a family house in a residential area in the popular location of Tiche udoli n Roztoky u Prahy. The land parcel is situated on a slight southern slope in a short turning blind above the Tiche udoli street. The land is connected to all utilities and landscaping has been carried out for future construction.
The price for the property includes a building permit for the construction of a house with a basement and two floors with a total area of 330 sqm. The future house is conceived as a villa with two 5 bedroom apartments which can alternatively be combined in accordance with the project by a simple change,and also one studio apartment. Parking and technical facilities located in the basement. There is a wine cellar built on the land with a usable area of 70 m2 and a layout of 1+1 complying with the building requirements for the operation of a wine cellar.
Equipment
The wine cellar is made in high quality: marble floors, wooden windows with triple glazing, solid wood interior doors. The house is very well equipped: air conditioning, gas boiler, underfloor heating, central vacuum cleaner, alarm connected to the PCO, designer lighting, roller shutters, preparation for a fireplace and high-speed internet connection. A generous marble staircase at basement level descends through the centre of the wine cellar to the extensive 19th century wine cellar after renovation with a total usable area of 155 m2. There is optimum humidity and a year-round stable temperature, and storage capacity for up to 20,000 bottles, as well as space for comfortable seating. The electrical installation has been completely replaced. A small vineyard has been planted on part of the land next to the future house. This is an attractive plot in a quiet part of the village with exceptional attributes that extend the range of its future use.
Locality
The Tiche udoli in Roztoky has been a favourite location for living and recreational activities since the first republic. It is a nature locality along the Unetice stream whose romantic character has always attracted investors to build ambitious housing. The result is today's beautiful residential area with attractive houses in large gardens, quickly accessible to Prague 6 by car, train or public transport. There are a variety of international schools in the area. The centre of Prague is accessible within 30 minutes and the airport within 20 minutes by car.
Property specifications
Are you interested in this property?
Contact us. We’ll be happy to discuss the details.

Gallery
What the property looks like and its surroundings
Floor plan
What you'll find in the property
We’ll help you choose
We’ll help with financing
Property as an investment
Watchdog

